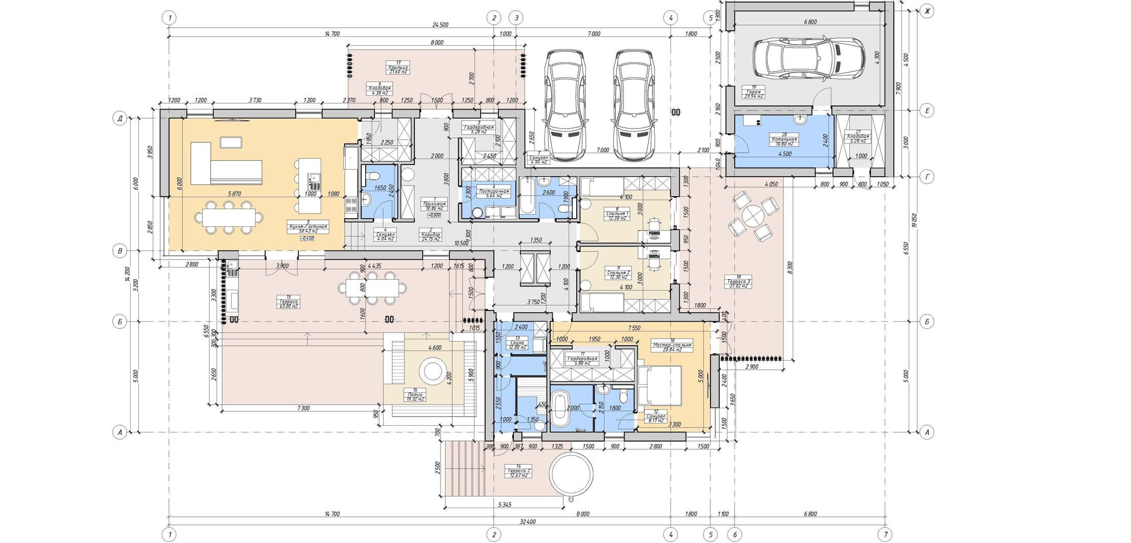
Разработанный проект индивидуального жилого дома в составе поселка, проектируемого нашей командой. Здание расположено в г. Благовещенске. Дом предназначен для проживания одной семьи из 4 человек. Включает в себя 3 спальни, кухню-гостиную, 3 санузла, постирочная, русская баня, японская баня Фурако, зоны хранения, 2 просторные террасы, зона патио, гараж, котельная, кладовые.
  • Изображение
В архитектуре дома сочетаются японские мотивы и изменённый на современный манер стиль Райта. Дом проектируется из полистиролбетонных блоков с утеплением. В отделке используются фанера с hpl пластиком, декоративная штукатурка, термодоска.

Общая площадь: 226 м²
Полезная площадь: 380 м²
Жилая площадь: 115 м²

Адрес

г. Смоленск, ул. Полтавская, д. 8-А
Создавайте продукты вместе с нашей командой и получайте результат

E-mail: volt@tec-1.ru